Skip to content

Cutting the Dragon's Tail

Voyaging with Tin Hau

Cutting the Dragon's Tail
Previous Image
Next Image

Fig-10

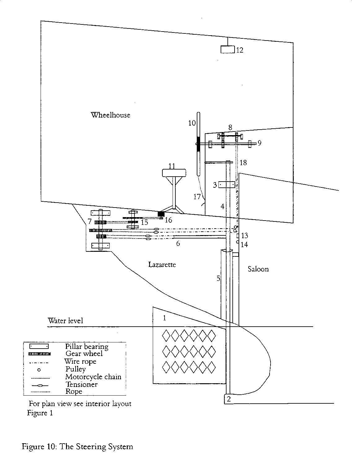
Fig 8 – Steering system

Posted on June 27, 2014 Full size 1136 × 1513

Post navigation

Published inDrawings

Recent Comments

    Archives

    Categories

    • No categories

    Meta

    • Log in
    • Entries feed
    • Comments feed
    • WordPress.org
    Cutting the Dragon's Tail Proudly powered by WordPress